
Представлены первые визуализации будущего нового Музея лоцманов, который планируют создать в древнем поселке Лоцманская Каменка на окраине Днепра.
Собственно говоря, еще с 1994 года Музей лоцманов уже был открыт и работает до наших дней. Но он занимает лишь одно небольшой помещение в лоцкаменском Доме культуры и давно нуждается в расширении и обновлении.
Как уже подробно рассказывал Городской сайт, в днепровской мэрии запланировали создание нового интерактивного Музея лоцманов.
И вот уже готовы его первые проекты. Над ними работает команда в составе: Никита Шаленный, Андрей Горбунов, Мария Яброва, Антон Бирюлев.
Об этом известный днепровский художник Никита Шаленный сообщил следующее:
«Нам поступил запрос на разработку концепта Музея истории лоцманов.Представителями мэрии анонсировалось, что новый Музей лоцманов будет открыт до конца 2021 года.Музей сегодня - это в первую очередь место культурного досуга, а уже во вторую качественно поданная история, артефакты и документы.
Наш музей - это интерактивная игра, в которую мы предложили сыграть зрителю. Mapping, аудио-инсталляции, интерактивные экраны, удобная инфографика - те инструменты, которые помогают быстро погружаться в историю.
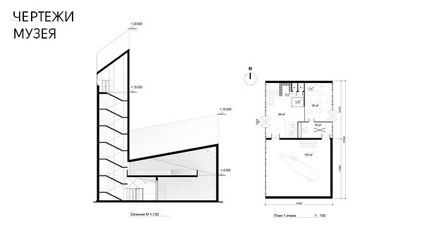
Мы предложили зрителю: вначале подняться на смотровую башню, из нее перейти в зал инфографики, затем посетить Mapping зал, где зритель может увидеть пороги до и после постройки запорожской плотины.
Мы уделили особое внимание фактуре и форме. Фасад - дает нам не прямую отсылку к первым казацким церквям, и одновременно напоминает большую латинскую L, первую букву в слове loodsman (от нидерландского «судоводитель»), а также ломаная форма кровли похожа на днепровские пороги. Фактура старой палубной доски дает отсылку к сплаву леса, а чешуйчатая поверхность оцинкованной черепицы подобна искрящейся глади Днепра на солнце».
Учитывая, что только сейчас представлены первые проекты будущего музея, эту дату, очевидно, придется подкорректировать.
Иллюстрации – со страницы Никиты Шаленного.
![]() |
Gorod`ской дозор |
![]() |
Фоторепортажи и галереи |
![]() |
Видео |
![]() |
Интервью |
![]() |
Блоги |
| Новости компаний | |
| Сообщить новость! | |
![]() |
Погода |
| Архив новостей | |