
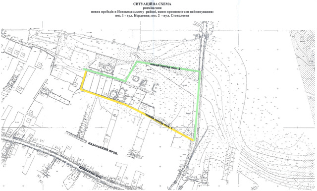
В Днепре девяти новым проездам собираются присвоить наименования. Расположены новые улицы будут в двух районах города: Амур-Нижнеднепровском и Новокодакском.
Названия предложила комиссия по вопросам наименований и переименований городских топонимов. Об этом сообщается в проекте решения сессии Днепровского горсовета. Так, в Днепре могут появиться следующие улицы:
Амур-Нижнеднепровский район:
Новокодакский район:
Решение должны рассмотреть на следующей сессии Днепровского горсовета.
Автор: Платон Бережной
![]() |
Gorod`ской дозор |
![]() |
Фоторепортажи и галереи |
![]() |
Видео |
![]() |
Интервью |
![]() |
Блоги |
| Новости компаний | |
| Сообщить новость! | |
![]() |
Погода |
| Архив новостей | |